It has been several years since we visited the former Poplar Theatre which stood somewhat discreetly at 517 Poplar St. in the past. At the time, the sadly decrepit theater was recently torn down, with plans from HDO Architecture for a contemporary 40-unit building, with garage space for 29 cars and a retail spot on the corner of N. Randolph & Poplar. Even after years of delays after plans were first pitched, we are pleased to say that things are now wrapped up at The Randolph.



This project has actually been finished for a couple of years at this point, though it has dodged our development gaze during that time. The units appear to be mostly full, with only a single one-bedroom unit for $2100/month available upon our latest perusal. The mechanical parking garage is accessed from Poplar, as is the main lobby entrance, and the commercial space on the corner of 5th looks ready for a new tenant. Red brick is broken up by large bay windows, with street trees thankfully beginning to really establish themselves along the streetscape.



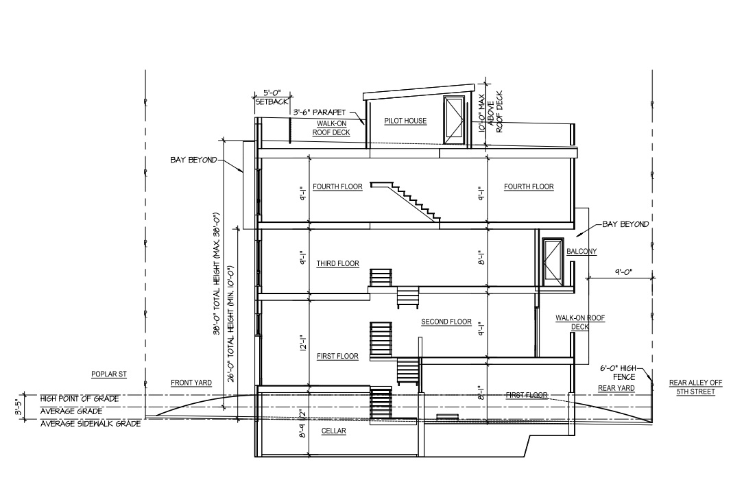
But that’s not all that’s happening construction-wise along this block. If you peer to the east, you can see yet another structure rising at the end of the block at 500 Poplar St. next to its neighbors. We were here in 2022 when we told you of plans to subdivide this property from the one next door, allowing a single-family home to be built on the new lot. This new structure from Fusa Designs will rise four stories and feature balconies, a roof deck, and – surprisingly – zero parking. This one looks to still have a ways to go with facade work, windows, and who knows what else is still left before things are complete here.




It was quite interesting to see the comparison of the older, smaller homes on the south side of the block with the larger, newer construction on the north side of the block. And it sure is nice to see continuous rows of housing throughout this stretch where there were once huge areas of vacancy just a decade ago. With this pocket of Northern Liberties continuing to see action, we’d imagine that this in-filled future is only going to expand from here.

Leave a Reply