We don’t find ourselves covering Holmesburg very often, probably because there’s not too much development activity happening this far up the MFL. But a somewhat unusual property brought us all the way up to these parts, where we should soon see a long vacant lot get filled, and we mean that in more ways than one. 8020 Frankfrord Ave. experienced a fire about 45 years ago which resulted in the demolition of the building that once stood here. Nearby, many businesses have come and gone in the years since, but this lot has remained consistently vacant.

8020 Frankford Ave. is unusual in that it has 21′ of frontage along Frankford Ave. and runs about 300′ deep, all the way to Craig Street. For context, a typical property that conforms with a number of zoning districts measures 16’x90′, and the vast majority of properties in and around Center City don’t even get close to 90 feet of depth. For whatever reason, city planners in the late 1800s mapped a number of extra deep but not so wide properties in Holmesburg – and so we find ourselves with the current condition at 8020 Frankford Ave., where a 6,920 sqft lot is only 21′ wide.

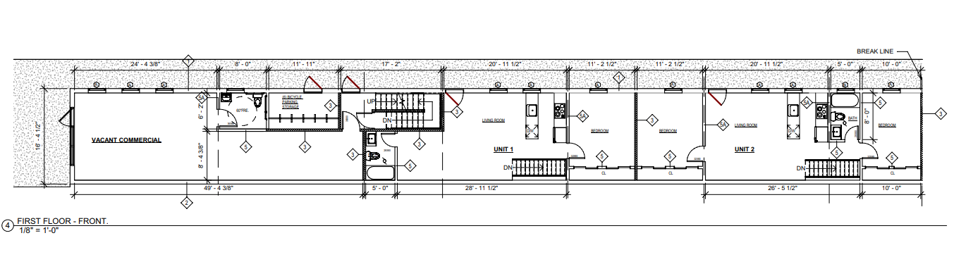
You’d probably assume that any development proposal here would either entail chopping the lot up into two pieces or consolidating it with other parcels to create a more typical redevelopment site. But this assumption would be entirely off base! Surprisingly, developers are pursuing a single building here, with plans for a three story building with 17 apartments over commercial. Oh, and it’s totally by right.



The biggest challenge presented by this site is to provide light and air to units in the middle of the building, as windows are not allowed on property lines. The design team solved this problem by creating a 5′ walkway along the western side of the property, to allow for a wall of windows on the side of the building. To provide maximum frontage for the commercial space, access to the upper floors of the building will occur from the walkway, as will access to the two ground floor units.
Sometimes developers only include retail in apartment buildings because it’s required by the zoning code, but we don’t think that’s the case here. We noticed that the property owners run a hair salon just down the street, so it’s possible they’re planning to move into the ground floor commercial space in the new building. If not, this strip of Frankford Ave. is a legitimate commercial corridor filled with a number of small businesses, and a variety of tenants could thrive in this location.
Similar to the situation we saw with a senior housing facility in East Germantown a few weeks ago, this plan will replace a previous one that was permitted in the waning days of 2021 and has expired. That plan called for 4 stories, 19 units, and a much larger commercial space on the first floor. We couldn’t tell you why the previous plan fell through, but we confess we are a bit bummed that the project has lost a floor over the last few years. Be that as it may, we’ll be pleased to see this vacant lot get filled as last as the developers cleverly infill a property with a challenging footprint.


Leave a Reply