While ZBA hearings can be dramatic at times, most L&I refusals are rather dry and technical, sometimes leaving us to wonder what a development team is actually trying to build. Last week, a proposal went to the ZBA to consolidate five small lots in Kensington for passive recreation. Our first thought was that this was a plan for a fake park, simply to avoid nuisance fines. But that’s not the case at all! Instead, 3215-23 Shelbourne St. will soon be transformed into a legit outdoor recreation space.


Esperanza Health Center is the party planning the park, which in the abstract seems like a confusing choice for a local health care provider. But when you consider that Esperanza built a community wellness center at 3222-58 H St. a few years ago immediately to the north of these lots, it starts to make a lot more sense. Assuming it’s approved, the park will continue a remarkable transformation of this block over the last two decades. At the start of this century, the northern half of the block was dominated by industrial structures which had occupied the site for generations. Originally known as Shelbourne Mills, the site would eventually be used by the Sure-Fit Products Company for the production of slip covers. Later, the site was used by handbag manufacturer Ingber & Co., which still seems to have a dedicated fan base, despite ceasing production over sixty years ago.


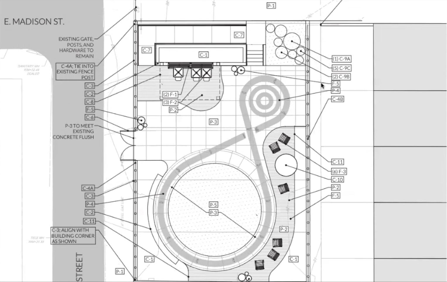
A small park is allowed here by right, but the inclusion of two fences along the edges of the park triggered zoning refusals because the fences are a bit too tall and opaque. Ordinarily, we would advocate that a pocket park only install enough fencing to visually delineate its boundaries. The folks at Esperanza don’t think that’s the right move at this Kensington location, as they communicated at the ZBA hearing that some they need fencing to keep unwanted visitors out of this space. So it seems that the park is intended for use directly by the adjacent health center, with the gate only occasionally opened to the broader community. This is unfortunate but also understandable, and we take the feedback from Esperanza seriously, given that they’ve been operating at this location for the last few years.


From the plans and renderings from Floura Teeter we can see tons of seating options, but also a lawn and paved portions of the park that can be activated for programming or more unstructured play. A small water element also appears to be part of the plan, as is a pergola which we see referenced in the zoning refusal but don’t see in the rendering. As the park’s design is a direct result of a community design pop-up more than two years ago, we think the designers have done a nice job creating a space which Esperanza should be capable of maintaining, while eliminating five vacant lots from the block.
With non-opposition from the district councilmember and support from Impact Community Development Corporation (the designated local RCO) the ZBA Board members seemed inclined to give this project the go ahead. But a technical issue with how the addresses were listed on L&I’s refusal required the board to hold off on voting on the two variance requests until this week’s meeting. This minor delay is frustrating, but considering how long the public consultation process has already been (three charrettes and three community review meetings) we’re just excited that the start of construction is almost within sight. Here’s to hoping that, once the park is built, Esperanza can come up with a plan to open the park to the community on a regular and predictable basis, sharing this new amenity with the rest of the neighborhood.


Leave a Reply