A couple of days ago, we told you about the gorgeous new construction home at 1801 Christian St., developed by Roman Mosheyev. Today, we have news about another project Mr. Mosheyev is working on, but this will be a very different animal.
Last night, at the SOSNA zoning meeting, Mosheyev presented a four story, thirteen unit condo building with thirteen parking spaces on the first floor, at the southwest corner of 20th and Kimball Streets. Currently a warehouse, the lot is actually zoned for residential use, due to the fact that seven homes were apparently once located on this site. Here’s what things look like at this corner today:

Looking south

From Washington Ave
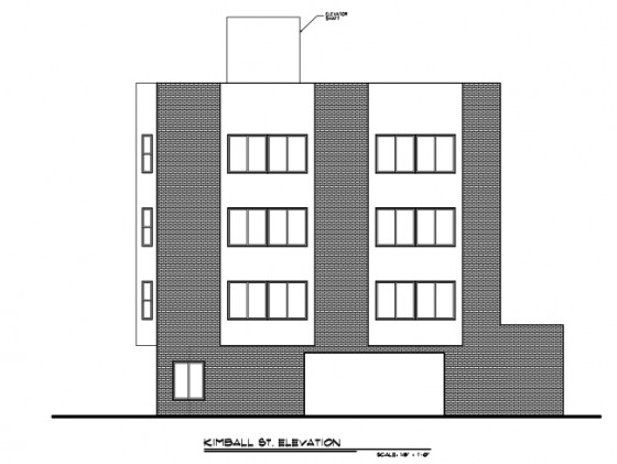
And here are some renderings of the proposed building:

Kimball St. elevations

View from 20th St.
As you can see from the image above, plenty of warehouse will remain to the south of this new development, and we’re not even sure if you’ll be able to see the building from Washington Avenue. What we will say is that this new use makes sense at this location, at the southern end of a residential neighborhood.
Reaction to the project from the community was mixed. Residents on Kimball Street seemed somewhat concerned about the height of the building, and very concerned about the curb cut on Kimball. The developer seemed willing to cooperate, saying that he would “definitely, definitely, definitely, probably” be able to move the entrance to the first floor garage to 20th Street to satisfy the desires of the neighbors. Of note, Mosheyev indicated that he believed that this project would be the ideal fit for the neighborhood, but if he didn’t receive support that he would simple wait until the new Zoning Code was enacted in a couple of months, and reapply to build fifteen units, without parking, by right. There was some disagreement about his interpretation of the new code, but this bears considering when thinking about the project.
The developer agreed to come back to SOSNA next month with a revised design, moving the location of the garage. We sure do hope that this gets built, if for no other reason than it might shame PHA into cleaning up their blighted property across the street.

C'mon PHA! Fix these houses.
Then again, PHA kind of has their hands full at the moment…

Leave a Reply