A few days ago, we told you about a lovely garden on the 1700 block of Kater Street that almost forgives the monstrously ugly parking garage that sits in front of it. In response to that post, a reader shot us an email with some info about possible improvements on the horizon for said garage. Well, at least at for the corner of 17th & South.
It’s easy to miss, but the southwest corner of 17th & South contains a pretty sizable retail space which has been vacant for several years. We’re pretty sure it once held offices for Graduate Hospital, and we always thought it would be a dynamite spot for a bar. Instead, it seems that Puentes de Salud has its eye on this space. In case you’ve never heard of this non-profit, their focus is on promoting the health and wellness of the Latino community. They engage in these efforts through “high-quality health care, innovative educational programs, and community building.”
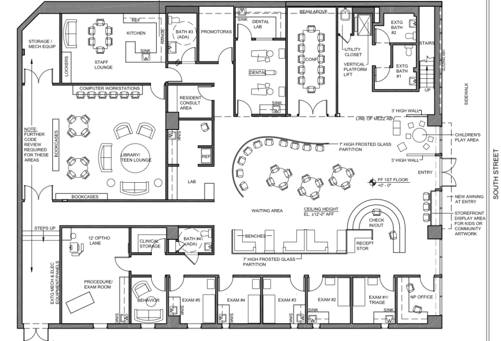
Last year, a service grant from the Community Design Collaborative sponsored a proposal for the space from local architects Johnson Stromberg, the same team behind the design for Carpenter Square. Puentes de Salud is apparently doing some serious fundraising for the project at this time, and we may see movement here as early as this fall. Check out some renderings and a floor plan:
The vision for this site is a combination health clinic and community/education center. Along with dramatic renovations to the interior, you can see plans for serious improvements to the outside of the space, including colorful new windows and a mural. While this may not be as much fun as the addition of a new bar to South Street West, it would provide important resources for the surrounding community while dramatically improving the look of a really unattractive building in the process.
We certainly hope this important project gets off the ground, and will provide updates as they come in.








Leave a Reply