It’s a fact that every neighborhood has better blocks and worse blocks. In many cases, geography plays a role in that determination- you’d clearly be happier looking out your window at a park rather than, say, the El. And while the views on the 1900 block of League Street could be worse, they’re not exactly the picturesque ideal of urban paradise.

The block

The view
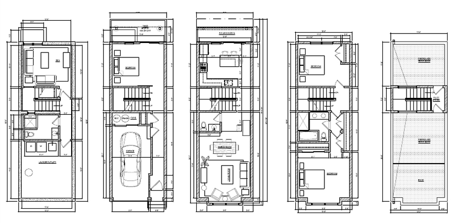
A couple of weeks ago, representatives of V2 Properties LLC presented plans to the SOSNA Zoning Committee for five new homes on this block, at 1905-13 League St., designed by Harman Deutsch. The homes, as proposed, would have three bedrooms, two and a half bathrooms, a one-car garage, and a roof deck. The tradeoff for a garage on this smaller lot is a less-than-ideal layout, with one of the bedrooms on the first floor behind the garage, and no real master bedroom. Also, the property extends quite far back on the property line, leaving a tiny 90 sqft rear yard.
The community was not enthralled with the project, perceiving it as a bit of an overbuild and questioning the height and the lack of open space. The developers are in a bit of a pickle here: With a block that’s less than ideal, they need to find a way to make the homes they’re building attractive to potential buyers. But when you build tall houses on a narrow block with very little open space, things can feel a little crammed for residents. The solution is probably to eliminate the garages, but it didn’t seem like the developers were into that idea.
Hopefully, something will get built here sooner rather than later, and improve this block quickly. It needs all the help it can get.



Leave a Reply