When we first wrote about a proposal to redevelop the Overseas Motor Works back in 2016, we noted the diminishing number of lots along Fairmount Avenue available for larger projects, and that’s only become more true in the intervening years. But while Francisville has certainly continued to transform, the single story commercial building at 1501 Fairmount Ave. remains a potential redevelopment site after an aborted effort to add 20 apartments to the historic building. Now there’s a new proposal to construct a six story mixed-use overbuild with 34 apartments on the property, but it’ll need approve from the Historical Commission before it can proceed.


While the physical condition of the legacy building was in dispute a decade ago when it was nominated for the Philadelphia Register of Historic Places, the subsequent incomplete redevelopment effort under a prior owner left the property indisputably in poor condition. With the interior of the building having been demolished, all that remains is the building’s facade. The cast stone walls are only propped up by wooden beams, so it would seem like this reminder of Philadelphia’s Art Deco past might not make it much longer without some serious investment, and soon. Fortunately, in addition to shoring up the remaining building structurally, the proposal calls for patching, repairing, and cleaning the facade.


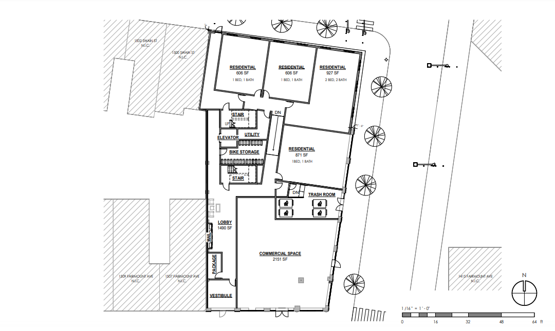
The project calls for commercial space at the corner of 15th & Fairmount, as we can see from the plans from designblendz, with four apartments taking up most of the rest of the first floor. It’s not necessarily obvious from the renderings, but the facade will largely be clad in brown standing seam metal, rather than brick. It can be tough to predict how proposed materials will actually look like in the real world, but it seems like the metal will blend in with the nearby buildings, both old and new. While there’s a bit of brick used on the back of the building, we wouldn’t be surprised if the members of the Architectural Committee press the owners to use more of the material on the addition, to match some of the brick used along the corridor.


The largest difference between the previously approved project and the new proposal is the addition of two floors, though we can also see in the previous plans from Harman Deutsch, the second story setback was a bit further back from the tower compared to the present plans. Incidentally, while we understand that both proposals set the overbuild back from the original facade to preserve the original building’s massing, we would have preferred a plan that eliminated this setback, as it looks a bit clunky in either plan. The latest version is better thanks to the added height, but it’s still not ideal, in our estimation.

With the current building in such a perilous condition, we’re hopeful the Commission will quickly give their blessing to this project so the impressive facade can be saved. Understandably, preservationists may be upset that the prior owners demolished much of the building without actually getting anything built, but a win-win is still possible where the historic structure is preserved and new housing and retail are added only a block away from the Fairmount subway station. Let’s just hope the Commission members don’t hit the brakes or keep this project in neutral for too long.

Leave a Reply