Once you step off Passyunk Avenue, the East Passyunk neighborhood is dominated by single family homes, sitting on small to medium sized lots. When you happen upon a larger parcel, like the nearly 12K sqft property at 1601 S. 9th St., you can usually rely on there being some interesting history that resulted in the larger dimensions. In the case of this particular property, the Tasker Public School was constructed here in 1868 and educated local kids until its demolition in 1940. Needless to say, they don’t build them like they used to.


Old zoning records indicate that a gas station opened at this address just a few years after the school got demoed. At one point in the 80s there was apparently a Wawa here for a minute. Eventually a video store and a bakery thrift shop moved in. In recent decades, a daycare called Kai’s Comfy Corner operated here, using part of the outdoor space for parking and the rest for play space for the kiddos. While a daycare with dedicated outdoor space is a wonderful amenity for the neighborhood, it’s a pretty significant underuse of valuable real estate just two blocks from Passyunk Avenue. Developers are, quite reasonably, looking to redevelop this parcel into something more appropriate for the location, but the property is regrettably zoned for auto-oriented commercial activity.

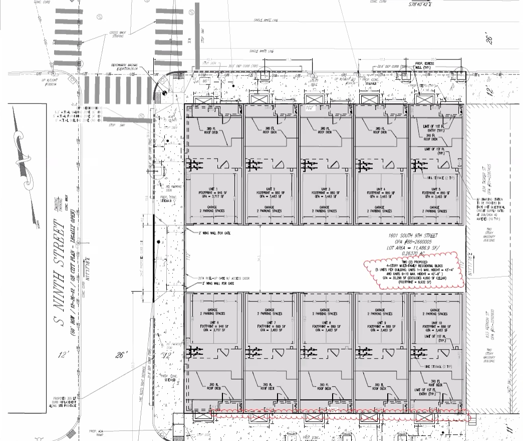
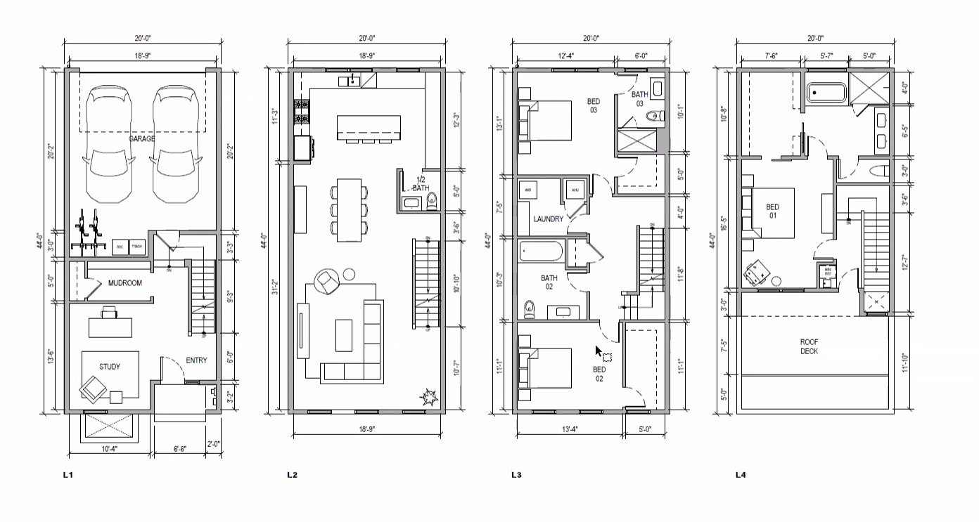
These developers are looking to build ten townhomes on this site, with five of the homes fronting Tasker Street, five fronting Fernon Street, and a drive-aisle in the middle to service two-car parking for each home. Given the underlying zoning of the property, this plan triggers a host of zoning refusals. Aside from the use refusal, the project also received refusals for height, lot coverage, and lack of accessible parking spots. Refusals notwithstanding, we would argue that ISA designed some rather attractive homes that would fit in really well with the rest of the neighborhood.




In order to secure the support of the East Passyunk Crossing Civic Association the development team made a minor concession, slightly reducing the height of the homes on Fernon Street. Ensuring that new residents wouldn’t be competing for on-street parking spaces seemed like the top community concern, and the project easily solved for that by offering 2:1 parking. With RCO support, this project sailed through its ZBA hearing without much contention, and now the developers have pulled demo permits for the building on the site, so this project sure seems like a go.
As urbanists, we would have certainly preferred an apartment building with more density, ground-floor retail, and no onsite parking. But given the zoning of the property, this project was probably the best possible outcome. So despite our minor disappointment about a project that’s not quite the highest and best use for the property, we’ll still call it a win for the neighborhood and look forward to seeing construction start soon.

Leave a Reply