When we wrote our predictions for 2025 a few months ago, we mentioned Kingsessing as a neighborhood to keep an eye on, and just last week we saw an interesting permit for a mixed-use building in this neighborhood. Could a new mixed-use building at 5442 Woodland Ave. foretell more transit oriented development along SEPTA’s T4 trolley line?

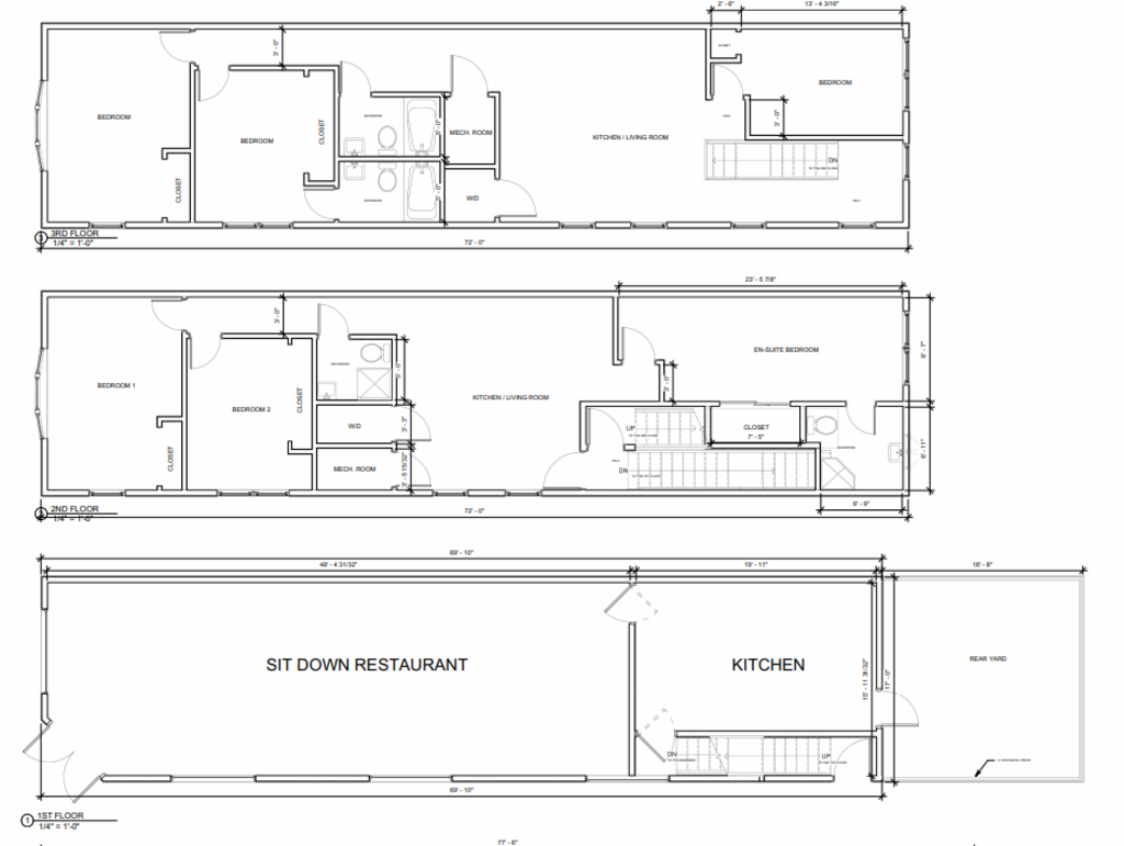
From old zoning records we see that the long demolished building on this corner once housed a luncheonette beneath five apartments, so a proposed building with two apartments over a ground floor restaurant is a return to form. Pardi’s Hoagie Shop sounds like a pretty casual place in a 1949 help wanted ad in the Inquirer listing a position for a waitress “familiar with hoagies, steaks & fountain,” but the new building calls for sit-down dining. As we can see from plans from E Consulting LLC, the restaurant will take up the entire first floor, with a rear staircase leading up to the apartments above. We’re not sure what type of restaurant will be moving in, but they’ll have enough room for a fairly large setup, including space in the basement for back of house activities.

A deep building (nearly 70′) and the decision to dedicate a whole floor to each apartment results in a pair of 3 bedroom units. Fortunately as a corner property these family friendly units will have windows of three sides, which should allow for plenty of natural light and air. The developers could have used zoning bonuses to add a unit and build a 4th story, but given the size of the property, this simpler approach seems entirely appropriate.


From the drawings included in the permit it looks like the owner is planning to use brick for much of the facades along the sidewalk and rear, which will help match the twins and rowhomes along 55th Street. The large ground floor windows for the restaurant should be inviting to folks strolling by, but with much of the block dominated by grass fields and surface parking, it might be awhile before this strip of Woodland Avenue becomes a vibrant commercial corridor, even with trolleys rolling by every few minutes.

The construction of this building will reduce the visibility of the side of 5436 Woodland Ave., which is home to the “Fathers and Children Together: A Father’s Love is a Child’s Treasure” mural. This work celebrating fatherhood under difficult circumstances will still have a couple vacant lots of breathing room, so figure it will remain visible for the foreseeable future. To be honest, there are plenty of other vacant lots nearby that are ripe for redevelopment, so let’s hope that those other lots get built up before the lots next to the mural, and we can continue to enjoy it for at least the next few years.

Leave a Reply