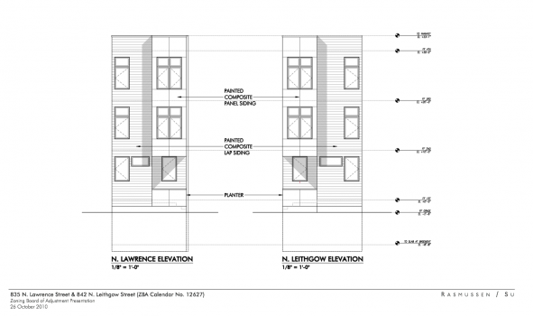
Olde Glory Builders are transforming a Lawrence Street lot that has sat vacant for years into two new single-family homes featuring elements of sustainable development. When they’re finished this summer, the structures on the 15′ x 45’ lots at 835 Lawrence Street and 842 Leithgow Street will feature green roofs, solar-power generated domestic hot water and fiber cement siding. Designed by architects at LEED accredited firm Rasmussen/Su, responsible for a similar building design at 1207 Annin Street, this project makes for two more examples of the green urban revitalization of the Northern Liberties neighborhood. The almost identical three-story, 2.5 bath homes with finished basements are each about 1,700 square feet and feature rear yards. Philly company Revolutionary Recovery will haul and recycle waste material from the site. (Major extra points from us for that one.)
Neighbors contested the initial project design that featured four stories and a pilot house for roof access when it was brought before the Northern Liberties Neighborhood Association zoning board last fall. According to NLNA zoning chair Larry Freedman, neighbors also protested against the subdivision of one large lot into two smaller lots. But after back and forth discussions, “at the end of the day, we’d rather see two single family homes than a vacant lot,” said Freedman. Architects brought a new plan back to the board limiting the construction to three-stories and a height of 35 feet. That plan was approved and builders broke ground this winter. The homes, which will be on the market for around $400K, will be built close to LEED standards, but will not be LEED certified. While they are not certified, they are sustainable, and here at NP, we like that. —-Lou Mancinelli



Leave a Reply