The 1100 blocks of N. Howard St. and N. Hope St. have come up repeatedly on this site over the past year, mostly due to the Residences at H3, a large project that’s brought twenty new homes to these blocks. As those homes have apparently been completed, we’ve seen some smaller infill projects crop up, and there are also plans in the works for thirty new homes on Hope Street, replacing a burned-down warehouse.
Today, we have some news on a small infill project at 1133 N. Howard St., which extends all the way to Hope St. in the rear. We bring this to your attention not only to further demonstrate the continuing progress on these blocks, but also to show off one of the nicer designs we’ve seen lately for a one-off mixed-use building. Take a look at the property today:
The current structure, with its green door and stucco, doesn’t so much take away from the streetscape (especially considering the blight that ruled this area not too long ago), but it certainly doesn’t add anything at all. Now, check out the rendering of the building that will be replacing it, designed by Harman Deutsch.
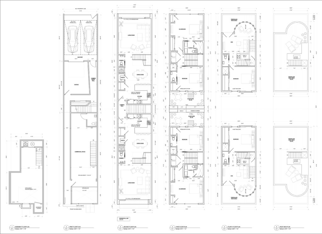
This building is (in our estimation) a really attractive contemporary structure, both inside and out. We dig the mixture of materials on the facades, the large windows, the set back fourth floor, and the second floor balcony. And if you take a look at the floor plans, you’ll see a design feature you wouldn’t expect just by looking at either side of the building.
The first floor will be a studio space for the property owner’s interior design business- this person will also apparently be living in one of the two upstairs apartment units. Upstairs are two apartments. As you can see, there’s an eighteen-foot open space in the middle of the third floor which provides needed light and air to the two residential units. Sure, it takes away desirable square footage, but it improves the livability of the units considerably. What a great idea for a building that’s built on such a deep lot and runs street to street!
Now, who wants to wager that once this project gets underway, the owner of the property next door will suddenly get the urge to put their property on the market? Step right up and place your bets!







Leave a Reply