We’ve never been to Philadelphia Traffic Court personally (due to our impeccable driving record), but we are very familiar with its large presence on the 800 block of Spring Garden Street, across from the recently demolished Spring Garden Station. However, the area just to the south of the Traffic Court building is a bit of a mystery, as it consists of a hodgepodge of low-rise buildings and short streets that disappear from block to block. Even with our intrepid exploring, we were shocked at how foreign the area felt when we were checking out 442-62 N. 8th St., where there are plans afoot. Positioned between Chinatown, Northern Liberties and West Poplar, the industrial low-rise structures create a maze of businesses, with almost zero residential buildings in the area. Let’s make like a bird and check out some aerials of the immediate neighborhood.
The low-rise buildings currently covering this property aren’t exactly stunners, with beige brick covering the majority of the structures. Home to a number of businesses, this stretch of N. 8th Street is about to get a major change soon enough.



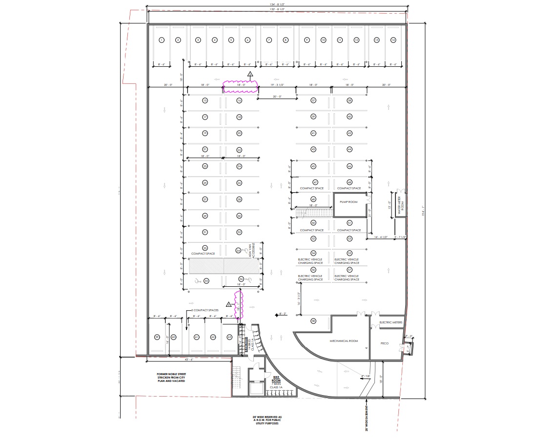
Parallel Architecture Studio has designed a multibuilding project, consisting of 17 three-story triplexes and 3 three-story quadplexes for a total of 63 units. The design will include below ground parking for 63 cars and 21 bicycles on this CMX-3 zoned parcel. Look for a drive aisle to be accessed on 8th Street at the southern end of the site. The contemporary look will offer a striking contrast to the patina of the other buildings in the area, so let’s check out those plans.




What a change, right? We wish that the developers took greater advantage of the CMX-3 zoning with some added height and density, but this is still a monumental change for the area. What is currently a less than pleasant place to do much of anything will soon become home to over 60 people, adding a residential mass to the area that has been missing for decades. This project is part of a growing number of proposals that are slowly closing the chasm left by urban renewal in this area.

In fact, this sits in the shadow of one of the cooler buildings in the area, the Willow Steam Generation Plant. We hilariously covered this building last year, but we are pleased to report that real zoning documents indicate that 69 units will soon make their home in this huge, hulking structure, which is also designed by Parallel Architecture Studio. When this happens, this area will have a residential pep in its step that has long, long been missing. In the meantime, we hope that a moving violation or whatnot doesn’t cause an unplanned site visit for any of our safe-driving readers.

Leave a Reply